Collection: Unirac
Stop compromising on structural integrity and start maximizing your ROI with the industry’s most trusted solar racking solution.
The Industry Standard for Reliable Solar Racking
The Unirac Solarmount Collection offers homeowners and businesses the ultimate foundation for any residential or commercial array. Known for its superior quality and dependability, the Solarmount series is the original rail-based system designed to transform how you install solar, from array design and logistics to final commissioning. Access the knowledgeable, consultative expertise needed to ensure your system is resourceful, efficient, and built for decades of peak performance.
Key Product Highlights
Our Unirac Solarmount solutions are engineered for maximum efficiency and ease of use:
- Universal Versatility: Revolutionary universal clamps and FlashKit Pro technology ensure a fast, leak-free installation on any roof type, including composition shingle, tile, and metal.
- Safety & Compliance: Every component is fully UL 2703 certified for electrical bonding and grounding, ensuring code-compliant safety and integrated grounding across the entire system.
- BAA & DCC Readiness: Select unirac solarmount components qualify for the Buy American Act (BAA) and the 10% Domestic Content Bonus Credit (DCBC), supporting projects that require domestic manufacturing.
- Superior Design Support: Get expert design assistance and access to stamped engineering letters through the U-Builder online tool to simplify your permitting process and project planning.
- Resourceful Engineering: The system features a high strength-to-weight ratio and is tested for extreme wind speeds up to 180+ mph, allowing for fewer roof penetrations while maintaining long-term dependability.
Secure Your Solar Future
Choose the mounting system that defines professional-grade solar. Scroll down and shop the Unirac Solarmount Collection now to maximize your system performance!

-
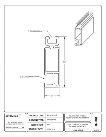
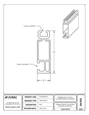
Unirac SM 168" Standard Rail, Dark anodized (Priced as 1 pc)
Description Unirac SM 168" Standard Rail, Dark anodized (Priced as 1 pc) Superior strength with high-end aesthetics. Unirac is a...
$98.25 USD$98.25 USD$98.25 USD -
Unirac SM 168" Standard Rail, Clear anodized (Priced as 1 pc)
Description Unirac SM 168" Standard Rail, Clear anodized (Priced as 1 pc) The industry-leading standard for versatile solar racking. UNI-310168C...
$81.18 USD$81.18 USD$81.18 USD -
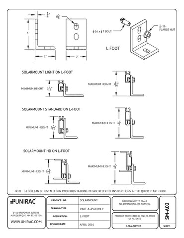
Unirac SM L-Feet, Integrated Bonding, Dark Anodized, with T-Bolt
Description Unirac SM L-Feet, Integrated Bonding, Dark Anodized, with T-Bolt Unirac UNI-304001D-US is a SolarMount serrated L-Foot with integrated T-bolt...
$5.52 USD$5.52 USD$5.52 USD -
UNIRAC SERRATED L FT DARK W/T-BOLT (Priced as 1 pc)
Description UNIRAC SERRATED L FT DARK W/T-BOLT (Priced as 1 pc) Structural, adjustable, and aesthetic rail attachment. The 304001D is...
$4.86 USD$4.86 USD$4.86 USD -
Unirac SM L-Feet, Integrated Bonding, Clear Anodized, with T-Bolt
Description Unirac SM L-Feet, Integrated Bonding, Clear Anodized, with T-Bolt Structural, adjustable, and code-compliant rail attachment. The 304001C-US is a...
$5.25 USD$5.25 USD$5.25 USD -
Unirac SM Splice Bars, Integrated Bonding, Mill
Description Unirac SM Splice Bars, Integrated Bonding, Mill Structural continuity with integrated grounding. The 303019M-US is a high-strength aluminum splice...
$10.22 USD$10.22 USD$10.22 USD -
UNIRAC SM PROSERIES MID CLAMP MILL (Priced as 1 pc)
Description UNIRAC SM PROSERIES MID CLAMP MILL (Priced as 1 pc) Universal, self-standing module bonding. The 302030M is a high-performance...
$5.05 USD$5.05 USD$5.05 USD -
Unirac SM Midclamps, Integrated Bonding, Black Stainless steel, Size BC for frames 30mm to 36mm
Description Unirac SM Midclamps, Integrated Bonding, Black Stainless steel, Size BC for frames 30mm to 36mm The UNI-302027D-US is a...
$6.28 USD$6.28 USD$6.28 USD -
Unirac SM Endclamps, clear anodized, Integrated Bonding, Size C for frames 33mm to 36mm
Description Unirac SM Endclamps, clear anodized, Integrated Bonding, Size C for frames 33mm to 36mm The UNI-302022C-US is a pre-assembled...
$4.43 USD$4.43 USD$4.43 USD -
UNIRAC SM END CLAMP B DARK ALUM
Description UNIRAC SM END CLAMP B DARK ALUM The UNI-302021D-US is a Unirac SolarMount end clamp (Size B) in a...
$5.26 USD$5.26 USD$5.26 USD -
UNIRAC SFM TRIMRAIL 72 UNIV DRK (Priced as 1 pc)
Description UNIRAC SFM TRIMRAIL 72 UNIV DRK (Priced as 1 pc) The UNI-256072U is a Unirac SFM INFINITY 72″ Universal...
$56.12 USD$56.12 USD$56.12 USD -
UNIRAC SFM TRIM END CAPS (Priced as 1 pc)
Description UNIRAC SFM TRIM END CAPS (Priced as 1 pc) The UNI-250130U is a Unirac SFM INFINITY Rail-Less Trim End...
$1.71 USD$1.71 USD$1.71 USD -
UNIRAC SFM TRIM SPLICE DARK (Priced as 1 pc)
Description UNIRAC SFM TRIM SPLICE DARK (Priced as 1 pc) The UNI-250120U is a Unirac SFM INFINITY Trim Splice in...
$6.69 USD$6.69 USD$6.69 USD -
UNIRAC SFM TRIMRAIL V2 UNIV CLIP W/HDW (Priced as 1 pc)
Description UNIRAC SFM ATT SPLICE 8" (Priced as 1 pc) The UNI-250030U is a Unirac SFM INFINITY 8″ Attached Splice...
$4.83 USD$4.83 USD$4.83 USD -
UNIRAC SFM ATT SPLICE 8" (Priced as 1 pc)
Description UNIRAC SFM ATT SPLICE 8" (Priced as 1 pc) The UNI-250030U is a Unirac SFM INFINITY 8″ Attached Splice...
$22.98 USD$22.98 USD$22.98 USD -
UNIRAC SFM MICRORAIL 2" (Priced as 1 pc)
Description UNIRAC SFM MICRORAIL 2" (Priced as 1 pc) The UNI-250020U is a Unirac SFM Infinity MicroRail (2″) component used...
$13.88 USD$13.88 USD$13.88 USD
100% Customer Satisfaction is our Goal!
Our priorities start first with our customer. We provide a Customer Focused Service that is a consultative approach to understanding your project or need. Experience has shown us that it yields greater results in project efficiency, cost savings, and customer satisfaction. Whether you’re looking to replace a solar panel or a battery, or have a project that requires sizing, design, support, and procurement - we are happy to help! Beyond that sales aspect, we work hard to ensure your order is processed, shipped, and delivered in a timely manner and in good condition.
Growth in Partnerships
Through our network of Manufacturers and Suppliers across the industry, we aim to unlock the full potential of quality solar energy products for your project needs. From our network of reliable solar panel manufacturers to groundbreaking energy storage solutions, we want to ensure we cover all types of applications and product needs so that we can be your one stop shop supplier!
Look to Solux, LLC for your Residential, Commercial, Off-Grid, and Energy Storage needs!
Responsibility to do better!
We believe we have a responsibility to our customers, employees, partners, and community to provide for a better tomorrow. Whether it is a friendly voice over the phone, or a collective effort to create a sustainable and cleaner future - These values keep us accountable to do better in everything that we do.

We are an online distributor of Solar Energy equipment specializing in supplying Solar Panels, Inverters, Racking, Energy Storage, & Electrical Equipment.















































